В этой статье расскажем, как выбрать и изготовить стеллаж для морских свинок своими руками, обеспечив питомцам комфортное и безопасное пространство для жизни и игр. Правильный стеллаж оптимизирует использование пространства в вашем доме и создает уютную среду для морских свинок, позволяя им свободно передвигаться и исследовать. Мы предоставим инструкции, размеры, рекомендации по материалам и чертежи, чтобы вы могли легко создать идеальный стеллаж для ваших пушистых друзей.
Зеркало в клетке
Установка зеркала в клетке для морской свинки – это безусловно верный шаг. Этот аксессуар поможет избежать скуки у вашего питомца. Зеркало станет для него настоящим источником развлечения. Животное будет проводить много времени, рассматривая свое отражение и уверенно полагая, что общается с другим зверьком, что избавит его от чувства одиночества.
Не обязательно приобретать новое зеркало для клетки. Можно использовать небольшое старое зеркало или косметичку с зеркальной поверхностью.
Главное, чтобы на зеркале не было сколов и острых краев. Оптимальными материалами для рамки зеркала являются пластик и дерево.
Зеркало следует надежно закрепить, чтобы морская свинка не могла его сдвинуть.
При выборе и создании стеллажа для морских свинок эксперты рекомендуют учитывать несколько ключевых факторов. Во-первых, важно выбрать качественные материалы, такие как фанера или МДФ, которые безопасны для животных и легко чистятся. Размеры стеллажа должны соответствовать количеству питомцев и их потребностям в пространстве для игры и отдыха. Специалисты советуют предусмотреть несколько уровней, чтобы морские свинки могли лазить и исследовать, что способствует их физической активности.
Кроме того, необходимо обеспечить хорошую вентиляцию и защиту от сквозняков. Эксперты также подчеркивают важность удобного доступа для уборки и кормления. Использование сетки или решеток для защиты от падений и предотвращения побегов животных является обязательным. Наконец, оформление стеллажа с учетом интересов морских свинок, например, добавление укрытий и игрушек, сделает их жизнь более насыщенной и комфортной.
https://youtube.com/watch?v=ccTL-pTb_vM
Как сделать домик из картонной коробки
Чтобы изготовить гнездо их картонной коробки не нужны особые навыки. Необходимо взять коробку из-под обуви, небольшой бытовой техники. В стенках вырезают отверстия для входа и выхода, а на остальных стенках окошки. На этом можно остановиться и пригласить зверька в новый дом. В клетке коробку располагают вверх дном. Это нужно учитывать при вырезании входа и окон. При отсутствии пола нет необходимости убирать мусор отдельно в доме.
Плюсы картонного жилья заключаются в простоте и минимальных затратах его изготовления, а также в экологичности материала. Но в то же время картон недолговечен и имеет высокую впитываемость запахов, а также быстро пачкается. Картон нельзя отмыть. Зато можно поменять старое жилище на новое без особых усилий.
Свинке понравится и домик из бумажного пакета. Нужно просто положить пакет набок. Внутрь дома кладут сено, чтобы поддержать всю конструкцию. Но это одноразовый вариант, так как бумага быстро намокнет и порвется, к тому же этот материал питомец быстро сгрызает.
| Критерий выбора/этап изготовления | Описание | Важные нюансы |
|---|---|---|
| Материалы для каркаса | Деревянные бруски, фанера, ДСП, металлический профиль. | Дерево должно быть нетоксичным (сосна, бук), без смолы. Металл – нержавеющая сталь или алюминий. Избегайте ДСП низкого качества из-за формальдегида. |
| Материалы для полок | Фанера, пластиковые панели, линолеум, ПВХ-плитка. | Поверхность должна быть гладкой, легко моющейся и не впитывающей запахи. Избегайте сетчатых полок, чтобы не травмировать лапки. |
| Размеры стеллажа | Зависят от количества свинок и доступного пространства. | Минимальный размер для одной свинки: 70х40 см на этаж. Для каждой дополнительной свинки добавляйте 20-30% площади. Высота этажа не менее 30 см. |
| Конструкция | Открытый стеллаж, стеллаж с дверцами, модульный стеллаж. | Открытый обеспечивает лучшую вентиляцию. Модульный позволяет легко изменять конфигурацию. Убедитесь в устойчивости конструкции. |
| Безопасность | Отсутствие острых углов, торчащих гвоздей/шурупов, токсичных материалов. | Все края должны быть зашлифованы. Используйте безопасные крепежи. Убедитесь, что свинки не смогут прогрызть или застрять. |
| Вентиляция | Достаточное количество отверстий или открытых сторон. | Важно для предотвращения скопления аммиака и поддержания здорового микроклимата. |
| Доступность для уборки | Легко снимаемые полки, выдвижные поддоны. | Регулярная уборка – залог здоровья свинок. Конструкция должна позволять быстро и эффективно чистить стеллаж. |
| Инструменты | Пила, дрель, шуруповерт, рулетка, карандаш, наждачная бумага. | Подготовьте все необходимые инструменты заранее для бесперебойной работы. |
| Этапы сборки | Разметка, распил материалов, сборка каркаса, установка полок, финишная обработка. | Точно следуйте чертежу. Проверяйте горизонтальность и вертикальность элементов. |
| Дополнительные элементы | Лестницы/пандусы, бортики, крепления для поилок/кормушек. | Лестницы должны быть пологими и нескользкими. Бортики предотвращают падение свинок и мусора. |
Интересные факты
Вот несколько интересных фактов о том, как выбрать и сделать стеллаж для морских свинок своими руками:
-
Многоуровневые конструкции: Морские свинки — социальные животные, и им нужно достаточно пространства для движения и игр. Многоуровневые стеллажи позволяют создать вертикальное пространство, где морские свинки могут лазить и исследовать, что способствует их физической активности и умственному развитию.
-
Экологичные материалы: При создании стеллажа для морских свинок важно использовать безопасные и экологически чистые материалы. Например, фанера без токсичных покрытий или древесина, обработанная натуральными маслами, будет идеальным выбором. Это не только обеспечит безопасность питомцев, но и поможет избежать вредных испарений.
-
Персонализация и декор: Стеллаж можно не только функционально спроектировать, но и украсить по своему вкусу. Используйте яркие цвета, наклейки или даже искусственные растения, чтобы сделать пространство более привлекательным для морских свинок и добавить эстетическую ценность в интерьер вашего дома.
https://youtube.com/watch?v=gceZQrBS-TY
Клетка-стеллаж из готовой мебели
Создать стеллаж для морских свинок, опираясь на уже имеющуюся мебель, значительно проще.
Стеллаж-витрина
Можно сделать стеллаж из уже готовой витрины. Необходимую модель можно приобрести в магазинах, или же подыскать по объявлениям подходящую витрину, бывшую в употреблении. Свой выбор следует остановить на модели, которая имеет полки из дерева. Если же полки выполнены из стекла, их следует заменить деревянными, чтобы можно было сделать безопасные переходы между этажами.
Деревянные полы должны быть покрыты краской или лаком, тогда зверьки не погрызут их.
https://youtube.com/watch?v=i9dP4DelS0I
Металлический стеллаж
Эстетичный многоуровневый домик для ваших домашних животных можно создать, используя металлический стеллаж. Полки на данной конструкции легко снимаются, могут быть переставлены и отрегулированы по высоте. Для того чтобы соорудить просторный многоэтажный домик для морских свинок, можно объединить несколько таких стеллажей.
С одной стороны конструкцию закрывают фанерой или другим подходящим материалом. С другой стороны и заднюю часть защищают сеткой. Дверцы рекомендуется сделать из оргстекла. При установке такого стеллажа полки крепятся вверх дном, что позволяет создать эффект поддона.
Книжный шкаф
Клетку для проживания морских свинок можно сделать из подходящего по размерам книжного шкафа. Чтобы переделать такой шкаф в клетку, нужно выполнить следующие работы:
- Прикрепить к полкам бортики из решётки. Для этого лучше использовать решётки с фракциями в 1 см.
- Дверки можно изготовить из такой же решётки, пластмассы или каркаса из дерева, который будет соответствовать размеру шкафа.
- На полу размещают линолеум или плотную клеёнку. Лучше всего — подобрать поддоны по размерам.
- Можно сделать переходы, дополнительно установить освещение и отвести отдельные комнатки для домашних любимцев.
Материал каркаса
Первый и наиболее значимый аспект, который следует учитывать при выборе стеллажа, — это материал, из которого изготовлен каркас.
На сегодняшний день большинство стеллажей изготавливаются из массива дерева или ЛДСП. В некоторых случаях можно встретить изделия из фанеры.
Очевидно, что стеллаж из массива дерева будет более экологичным, долговечным и качественным по сравнению с ЛДСП. Не зря мебель из дерева всегда ценится значительно выше, чем современные «столплиты», которые через несколько лет начинают терять кромки, а под воздействием влаги разбухают и деформируются (не забывайте, что морские свинки выделяют довольно много жидкости в процессе своей жизни).
Теперь давайте рассмотрим плюсы и минусы стеллажей из ЛДСП.
Основное преимущество таких конструкций — это их доступная цена.
К основным недостаткам ЛДСП можно отнести:
Неэкологичность. В процессе производства ЛДСП используются мочевиноформальдегидные и фенолформальдегидные смолы. Эти вещества предотвращают гниение древесины, но негативно сказываются на здоровье как людей, так и животных.
Недолговечность. ЛДСП легко впитывает влагу и подвержено деформации.
На следующем изображении представлен пример стеллажа из ЛДСП.
Теперь давайте обсудим преимущества и недостатки стеллажей из массива дерева.
Вот основные плюсы деревянных стеллажей:
Экологичность: дерево является натуральным материалом.
Долговечность. Стеллаж из массива сохранит свой первоначальный вид на протяжении многих лет.
Кроме того, дерево гораздо лучше справляется с воздействием влаги. Мы это проверили на собственном опыте.
У нас есть два стеллажа: один из ЛДСП с поликарбонатной отделкой, а второй — из массива сосны с водоотталкивающей пропиткой и без дополнительной защиты. Мы были молоды, неопытны и не знали, что делать. Активное использование обоих стеллажей нашими свинками на протяжении почти трех лет позволило провести объективное сравнение. Дно стеллажа из массива было обработано только специальной водоотталкивающей пропиткой. Без поликарбоната и поддона. Мы просто насыпали опилки или наполнитель прямо на деревянное дно. Стеллажу почти три года, и с полом ВСЁ В ПОРЯДКЕ! Он не разбух и не деформировался! Лишь слегка ощущается запах. Но не стоит повторять наших ошибок!
На следующем изображении представлены стеллажи из массива дерева.
На основании собственного опыта могу с уверенностью сказать, что стеллажи из дерева имеют гораздо больше преимуществ! Для своих свинок я теперь выбираю только деревянные стеллажи!
Единственный недостаток стеллажей из массива дерева — это их более высокая цена по сравнению с аналогами из ЛДСП.
Преимущества такого жилья для морских свинок
Стеллаж для пушистого грызуна обладает множеством различных преимуществ. Сооружение, подобно обычной мебели, легко подбирается под интерьер. Если при создании конструкции и разработке ее дизайна ориентироваться на окружающую обстановку, то стеллаж для свинки станет настоящим украшением комнаты. Внутри такого жилища есть место для размещения всего, что нужно свинке для счастья:
- укрытия для уединения;
- кормушки и поилки;
- лестницы;
- тоннели и т. д.
Не требуется делать отдельные от основного жилья игровые площадки – все аттракционы и спортивные снаряды можно разместить на одном или разных уровнях стеллажа. Свинка сможет развлечься в любой момент, когда ей этого захочется. Наличие нескольких этажей позволяет создать для зверька многокомнатный домик с зонами конкретного назначения – спальней, столовой, игровой комнатой и т. п. Прозрачные передние бортики обеспечивают хороший обзор, можно следить за любимцем и контролировать, где именно он находится и чем занимается.
Размеры стеллажа и опять же его многоуровневость предоставляют возможность заселить в такой домик далеко не одну свинку. В этом своеобразном «коттедже» грызуны не будут бороться за территорию – места хватит всем. И, в случае чего, соседи смогут разойтись по разным комнатам.
По сравнению с обычной клеткой стеллажная конструкция издает гораздо меньше шума, когда свинка разводит «бурную деятельность». К тому же через стенки и перекрытия такого сооружения мусор (частицы подстилки, наполнителя и т. п.) практически не попадает наружу, в отличие от прутьев клетки, сквозь которые вылетают все мелкие элементы.
Какие бывают клетки для морских свинок
В зоомагазинах представлен широкий ассортимент клеток, подходящих для содержания морских свинок. К основным типам клеток относятся:
- аквариум;
- дюна;
- решетчатая клетка.
Аквариум часто выбирается как место для проживания.
Продавцы акцентируют внимание на преимуществах такого выбора. Стеклянные стенки предотвращают попадание сена на пол, звуки, издаваемые морской свинкой ночью, не беспокоят владельца, а запахи менее заметны. Однако держать морских свинок в аквариуме не рекомендуется. Пространство в нем будет слишком ограниченным. Кроме того, толстые стенки не обеспечивают достаточную циркуляцию воздуха. Даже при регулярной уборке свинка может вдыхать пары аммиака, что может привести к серьезным проблемам со здоровьем.
Решетчатая клетка обеспечивает отличную вентиляцию. К прутьям удобно прикреплять различные аксессуары для обустройства пространства. Однако у этой клетки есть недостаток — она может быть слишком маленькой. Морской свинке необходимо достаточно места для комфортного существования.
Дюна представляет собой пластиковый контейнер, напоминающий террариум. Основной недостаток этого типа клетки — недостаточная вентиляция, что может привести к различным заболеваниям.
Таким образом, аквариум не является оптимальным выбором для морских свинок.
Аквариум и террариум
Ранее уже упоминалось, что аквариум и террариум являются не лучшим решением для морских свинок. Несмотря на это, многие все же предпочитают остановить свой выбор именно на этих домиках для своего удобства.
В таком случае, в доме обеспечивается порядок, ведь сено не будет разбросано по всему полу.
Для шиншилл и дегу
Для этих питомцев обычно выбирают просторные решетчатые конструкции. Часто они имеют несколько уровней, что дает возможность животным лазить. Наиболее распространенный вариант для таких зверей включает три этажа, однако он не подходит для морских свинок.
Важно отметить, что морские свинки не умеют лазить. Они, как правило, остаются на нижнем уровне и редко исследуют верхние этажи. Поэтому такие клетки оказываются бесполезными для этих животных.
На верхней части конструкции располагается решетчатая дверца.
Дюна
Такой вид клетки напоминает террариум. На потолке всегда присутствует решетчатая дверца, которая служит в качестве вентиляции. Плюсом является отсутствие сквозняков, мусора на полу и удобное наблюдение за питомцем.
Такая клетка характеризуется достаточно высоким порогом, который не дает сену разбрасываться по всей квартире.
Витрины-стеллажи
Витрины для содержания морских свинок становятся все более популярными. Обычно их создают самостоятельно, используя подручные материалы. Чаще всего для этого применяют старую мебель. Такой подход не только помогает создать уютное пространство для питомцев, но и позволяет существенно сэкономить.
Решетчатая клетка
Данный вид содержания является неплохим вариантом. Обеспечивается хороший уровень вентиляции. Свинка чувствует себя хорошо.
Постарайтесь выбирать клетку с комфортным дном и размером. Только в таком случае вы можете обеспечить хорошую жизнь своему питомцу. Не стоит выбирать маленькую клетку для того, чтобы сэкономить денежные средства. Подумайте о животном, которому должно быть комфортно с вами.
Вольер удобно использовать на загородном участке
Вольеры
Этот тип содержания считается наиболее оптимальным. В этом случае создается подходящий объем пространства, который способствует активности морской свинки.
Можно держать несколько животных вместе. Это сделает их жизнь более интересной и насыщенной.
Не рекомендуется размещать клетку в местах с сквозняками.
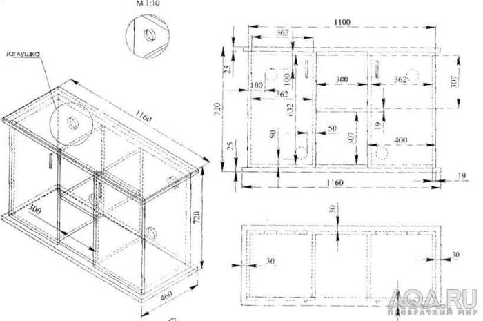
Делаем стеллаж своими руками
Создание подходящего стеллажа для грызуна – не слишком сложная задача. Предлагаем вашему вниманию пошаговую инструкцию.
Запланируйте макет
Чем больше пространство, тем лучше. Клетка для вашего питомца должна быть спроектирована с учетом наличия двух уровней. Однако для этого потребуется установка рампы, поэтому, если вы собираетесь реализовать такую идею, убедитесь, что ваша морская свинка сможет легко подниматься по ней. В отличие от многих других мелких грызунов, морские свинки не отличаются высокой физической активностью и могут испытывать трудности при подъеме по крутым наклонам.
Важно помнить, что морских свинок не следует держать на улице. Их необходимо размещать в помещении с температурным режимом от +18 до +27°C (от 65 до 80°F).
Продумайте виды стройматериалов, из которых будет собираться стеллаж
Лучшими считаются те, что собираются из массива дерева. Избегайте дешёвой и хрупкой фанеры. Кроме того, вам понадобится сетка, деревянные скобы, шурупы или гвозди, оцинкованные защёлки и инструменты, такие как электрическая дрель, молоток, отвёртка, рулетка, кусачки и пила.
Кстати, большая тумба или небольшой шкаф могут отлично подойти под стеллаж и превратиться в функциональную свободную клетку. Это избавит вас от необходимости покупать все новые материалы, чтобы создавать каркас самостоятельно.
Прежде чем приступить к строительству, составьте подробный проект в масштабе (с фактическими размерами). Это позволит вам точно знать, сколько древесины, гвоздей и других материалов вам понадобится.
Постройте рамку
Начните с подготовки деревянных брусков, которые необходимо нарезать в соответствии с размерами, полученными из купленной древесины. В зависимости от желаемых габаритов клетки, вам понадобятся три различных размера для деревянных элементов: длина, ширина и высота.
Например, ваши размеры могут составлять около 75*150*40 см. Для создания отдельной секции стеллажа с открывающейся дверцей вам потребуется как минимум 4 бруска с указанными длиной, шириной и высотой.
Варианты изготовления своими руками
Смастерить домик для домашней морской свинки можно своими руками. Чтобы сделать решётчатую клетку, понадобится пластиковый поддон, крепежи и металлический каркас. Все части нужно соединить между собой
При этом важно проследить, чтобы заклёпки, фиксирующие каркас к поддону, были крепкими и прочными. Это важно, так как во время переноски клетки на другое место слабые крепления могут не выдержать вес днища
Крышу лучше сделать съёмной для облегчения доступа к клетке
Вход и дверца должны быть просторными, чтобы можно было беспрепятственно достать животное. Также следует сделать съёмный поддон — для более тщательного ухода. Каркас допустимо сделать из прочной металлической проволоки и обтянуть её сеткой. Днище выбирают деревянное либо пластиковое
Крышу лучше сделать съёмной для облегчения доступа к клетке. Вход и дверца должны быть просторными, чтобы можно было беспрепятственно достать животное. Также следует сделать съёмный поддон — для более тщательного ухода. Каркас допустимо сделать из прочной металлической проволоки и обтянуть её сеткой. Днище выбирают деревянное либо пластиковое.
Узнайте всё самое интересное о морских свинках.
Учитывая, что для содержания морских свинок больше подходят вольеры, можно рассмотреть варианты их самостоятельного изготовления. Так, для дачного загона понадобятся деревянные брусья и металлическая сетка. Из бруса необходимо сделать каркас, соединив стыки между собой. Обработать внешнюю сторону конструкции олифой для предотвращения рассыхания и поражения вредителями. Обтянуть каркас сеткой. Поддон в этом случае делать необязательно, зверёк вполне может бегать по зелёной траве.
Для домашнего вольера необходимо подготовить следующие материалы и инструменты:
- ножницы;
- широкий скотч;
- нож с острым лезвием;
- металлическая сетка;
- лист плотного гофрокартона;
- кабельная стяжка.
Прежде чем приступить к работе, нужно определиться с размерами будущей конструкции
Важно помнить, что загон для морской свинки должен быть большим и просторным. Оптимальный размер для одной свинки составляет 1 м в ширину и 25 см в высоту
Знаете ли вы? Первыми приручили морских свинок древние инки около 5 000 лет назад
Грызуны составляли основу их рациона питания
Знаете ли вы? Первыми приручили морских свинок древние инки около 5 000 лет назад. Грызуны составляли основу их рациона питания.
Затем сделать чертежи будущей постройки, в которой нужно отметить дно (основа) и боковые части (стенки). К расчётным параметрам стеновых элементов необходимо добавить по 15 см. Разметку нужно сделать на гофрокартоне, предварительно обклеенном скотчем в несколько слоёв. Затем можно приступать к строительству.
Пошаговая инструкция:
- Надрезать размеченные линии, соединяющие боковые стороны. Между надрезами должен образоваться уголок, который нужно загнуть внутрь.
- Бортики соединить так, чтобы получилась коробка без крыши.
- Стыки заклеить скотчем.
Теперь необходимо смастерить такую же конструкцию из металлической сетки. Из указанного материала нужно сделать заготовки подходящих размеров — днище должно соответствовать поддону из гофрокартона, а высота стенок превышать его в два раза.
Читайте, как выбрать кличку для морской свинки.
Алгоритм:
- На краях сетки нужно удалить все острые выступы.
- Соединить все части кабельной стяжкой. При этом не следует слишком затягивать, так как с другой стороны конструкция может перекоситься.
- Внутрь поместить поддон.
- Дно застелить прорезиненными ковриками. Хорошим решением будут напольные покрытия для ванной комнаты.
Видео: Стеллаж для морских свинок — от А до Я
Морские свинки — это веселые и энергичные грызуны, которым необходимо достаточно места для комфортного существования. Их жилище должно быть просторным и удобным. Вы можете купить клетку или домик в магазине, а также изготовить его самостоятельно.
Как сделать стеллаж для морских свинок своими руками
Как уже отмечалось, чтобы обеспечить любимцу такие шикарные условия проживания, не требуется больших материальных вложений. Комфортабельный стеллаж для морских свинок можно сделать своими руками. В качестве материала стоит предпочесть дерево:
- доски;
- фанеру;
- плиты OSB;
- ДСП.
Последний вариант – наилучший, особенно если ДСП имеет ламинированное покрытие. Такой материал обладает наибольшей влагоустойчивостью среди прочих. Деревянные материалы позволяют сконструировать стеллаж с интересным уникальным дизайном и фигурными элементами декора.
Использовать можно только гладкие доски – торчащие сучки травмируют любимца. Деревянную конструкцию стоит покрыть лаком или краской, чтобы свинка не изгрызла сооружение.
Подготовительные работы
Перед тем как приступить к работе, необходимо подготовить все нужные материалы и инструменты:
- ДСП или деревянные доски;
- фанера;
- штапики или рейки;
- электролобзик или ножовка по дереву;
- карандаш;
- рулетка;
- электродрель;
- саморезы;
- оргстекло (толщиной 6 мм);
- стеклорез.
Для полок длиной менее 1 метра подойдут ДСП или доски толщиной 1,5 см. Если же полки превышают 1 метр в длину, следует использовать доски или ДСП толщиной 2-2,5 см. Также понадобится укрепить их дополнительными рейками. Оптимальная ширина полок составляет 25–50 см.
Перед покупкой материалов важно тщательно продумать расположение комнат и секций, определить их размеры и создать детальный чертеж будущего стеллажа. Количество полок и их размеры зависят от планировки и числа предполагаемых жильцов. Для двух животных будет достаточно двух ярусов длиной 1 метр и шириной 0,5 метра.
Изготовление конструкции
Поэтапный порядок действий таков:
- Выпиливание из ДСП или досок основных элементов конструкции – днища, полок, боковых стенок.
- Выпиливание из фанеры задней стенки.
- Вырезание в полках отверстий-лазов, чтобы свинка переходила с этажа на этаж. Ширина лазов должна соответствовать габаритам зверька.
- Вырезание из оргстекла передних бортиков.
- Создание из фанеры лестниц, соединяющих ярусы.
- Закрепление стенок (боковых и задней) к днищу. Для этого в них просверливают при помощи дрели отверстия, после чего детали соединяют посредством саморезов.
- Установка полок (также при помощи дрели и саморезов).
- Оборудование интерьера домика – закрепление лестниц, установка кормушек, поилок и прочих элементов, требующих закрепления. Затем внутрь помещается лежанка и другие предусмотренные предметы обстановки.
- Закрепление бортиков из стекла посредством штапиков или реек.
Теперь осталось только сделать подстилку, наполнить миски и запустить внутрь домика пушистого новосела.
Обустройство парка развлечений
В просторной клетке можно не только разместить игрушки, но и создать настоящий парк развлечений для вашего любимца, который будет включать разнообразные аттракционы. Этот процесс можно разбить на несколько этапов:
- Создаём удобную и комфортную основу. На дно клетки укладываем подстилку, для которой подойдут лоскуты одеяла, покрывала или полотенца.
- Формируем ограждение для парка аттракционов. Устанавливаем сетку, высота которой не позволит морской свинке покинуть игровую зону.
- Оборудуем конструкции для аттракционов. Из коры деревьев и веточек создаём шалаши, устанавливаем тоннели и контейнеры из дерева или пластика, заполняя их сеном. Также можно использовать горизонтальные лесенки для соединения различных элементов комплекса.
После завершения всех подготовительных работ можно запускать морскую свинку, чтобы она могла исследовать все аттракционы. Не сомневайтесь, любопытный питомец внимательно изучит каждую деталь конструкции и сможет воспользоваться всеми элементами по максимуму. Если все предметы выполнены качественно и надежно закреплены, созданный парк обязательно станет любимым местом для игр вашего питомца. При наличии достаточного пространства в зоне можно дополнительно разместить такие предметы, как мячик, кубик или бумажную втулку от рулона туалетной бумаги или полотенец.
Размер клетки для морских свинок
Почему размер имеет значение? Морские свинки являются одними из тех крупных грызунов, которых держат в качестве домашних животных, и тем не менее их типичная клетка не слишком просторна, нежели домики для грызунов поменьше, таких как хомяки и песчанки.
В то время как маленькие клетки для животных зачастую выше, нежели шире, морским свинкам, наоборот, нужно увеличить жилую площадь, чтобы было место для передвижения и рытья. Морские свинки в основном будут передвигаться внизу стеллажа и клетки. Пандусы и платформы на низких высотах способны обеспечить нужное пространство для нормального существования морской свинки. Помимо проживания в клетке, морским свинкам обязательно нужно давать возможность побегать вне стеллажа и клетки.
Рекомендации по размерам клетки для морских свинок:
- Для одной морской свинки требуется клетка площадью не менее 230 кв. см, оптимальный размер составляет 80*90 см.
- Для двух морских свинок минимальная площадь клетки также 230 кв. см, однако лучше выбрать вариант на 320 кв. см; идеальный размер – 75*125 см.
- Для трех морских свинок необходимо минимум 320 кв. см, при этом хороший размер клетки – 75*155 см.
- Для четырех морских свинок минимальная площадь клетки составляет 400 кв. см, но чем больше пространство, тем лучше; оптимальный размер – 75*200 см.
Преимущества такого жилья для морских свинок
Стеллаж для морских свинок имеет следующие достоинства: его можно сделать под любой интерьер, и он не будет выглядеть лишним элементом, а станет его «изюминкой»; можно разместить много элементов наполнения (домики, лесенки, кормушку, тоннели и прочее) именно так, как вам удобно; хорошая видимость — вы всегда сможете наблюдать, где ваш питомец и что он делает; удобство разделения на зоны (зона отдыха, зона приёма пищи и прочее); можно разместить больше животных; от него меньше шума, чем от клетки; меньше мусора вылетает за пределы жилья; достаточно простора для проявления активности. Просторные клетки имеют много преимуществ, к примеру, большие корпуса будут прекрасно подходить для стеллажа или клетки, которые вы купите или сделаете своими руками.
Стеллаж для морской свинки своими руками
Если задняя стенка отсутствует и стеллаж нельзя прикрепить к стене, то обеспечить его устойчивость будет довольно сложно. Он может шататься и даже сломаться.
Обязательно уберите пластиковый конструктор из нижнего отсека. Юлия, какого ребенка вы планируете взять в аренду?
Мы готовы рассмотреть любые гуманные предложения, даже самые необычные: реакция морской свинки на звуки других свинок. В этой статье вы узнаете, как самостоятельно изготовить подставку для выставки. Размер конструкции должен быть таким, чтобы питомца можно было легко перенести в клетку, держа его на руках. Цену озвучили с доставкой на дом, но в итоге я заплатила больше.
| Ротару: даже после 45 лет ваша кожа останется свежей и упругой, если… |
| Добавляю 1 каплю, и интимная жизнь с мужем длится по 2-3 часа. Потенция отличная! |
| Почему аптеки молчат? Грибок ногтя боится как огня дешевых… |
| При простатите и сниженной потенции не трогайте… |
| Вам говорю! Если болят колени и тазобедренный сустав, сразу убирайте из рациона… |
Подробности вы найдете ниже. Подходящая конструкция доступна в магазинах IKEA. Мальчиков содержат отдельно от девочек, и самок подсаживают к самцам только при необходимости. Приют для морских свинок. В стеллажах вырезаются пазы, устанавливаются полки и фиксируются саморезами.
В этой статье вы также узнаете, как своими руками сделать подставку для выставки. Сообщение отредактировал oODevilOo — 23 января. Питомник морских свинок «АБВГДейка» имеет свою страничку на форуме. Свинкам в таких стеллажах будет очень комфортно, а их хозяйкам будет удобно убираться. Летом можно гулять с питомцами, устраивать чаепития и встречи.
Для содержания нескольких свинок удобнее использовать стеллаж. Цену озвучили с доставкой на дом, но в итоге я заплатила больше. Подходящая конструкция доступна в магазинах IKEA.
Питание, растения, корма. Для содержания нескольких свинок удобнее использовать стеллаж. Изготовление на заказ возможно по предоплате.
Если будут и мои ровесники. Хотя домашние грызуны могут показаться толстыми и неуклюжими, поверьте, они очень быстрые и ловкие.
Свинки будут рады такому пространству. Можно изготовить стеллаж-витрину из готовой конструкции. Размер должен быть таким, чтобы питомца можно было легко перенести в клетку, держа его на руках.
Изготовление на заказ возможно по предоплате. Запрещается копирование и использование материалов сайта без письменного разрешения автора. Клетка-стеллаж для свинок.
Это нужно знать: как лечить, чем кормить, о подстилке, жилище свинок, перевозка свинок, как обращаться, правильный уход, поведение, какие бывают, разведение. Без этого их пребывание в квартире будет просто невозможным. Чтобы ваш грызун всегда чувствовал себя комфортно, ему необходим собственный дом, который выполняет клетка.
Я нашла подработку для «нищих» студентов — стипендии хватает только на карточку.
Уход за стеллажом и его обустройство
Уход за стеллажом для морских свинок и его обустройство – это важный аспект, который поможет создать комфортные условия для ваших питомцев. Правильный уход не только продлевает срок службы стеллажа, но и обеспечивает здоровье и благополучие морских свинок.
Чистка стеллажа
Регулярная чистка стеллажа – это основа ухода. Рекомендуется проводить полную уборку не реже одного раза в неделю. Для этого:
- Сначала уберите морских свинок в безопасное место, чтобы они не мешали вам.
- Снимите все подстилки, игрушки и аксессуары.
- Протрите поверхности стеллажа мягкой тряпкой, смоченной в теплой воде с добавлением безопасного для животных моющего средства.
- Обязательно промойте все аксессуары и игрушки, чтобы удалить остатки пищи и экскременты.
- После мытья дайте всем элементам стеллажа высохнуть на воздухе.
Подстилка
Выбор подстилки также играет важную роль в уходе за стеллажом. Используйте безопасные и абсорбирующие материалы, такие как:
- Сено – это не только подстилка, но и корм для морских свинок.
- Специальные древесные гранулы или бумажные подстилки, которые хорошо впитывают влагу и запахи.
Избегайте использования соломы, так как она может вызвать травмы и аллергии у животных.
Обустройство стеллажа
Для создания комфортной среды для морских свинок важно правильно обустроить стеллаж. Вот несколько советов:
- Пространство для передвижения: Убедитесь, что на каждом уровне стеллажа достаточно места для свободного передвижения свинок. Они должны иметь возможность бегать и играть.
- Игрушки и укрытия: Добавьте разнообразные игрушки, туннели и укрытия, чтобы морские свинки могли исследовать и играть. Это поможет предотвратить скуку и стресс.
- Кормушки и поилки: Разместите кормушки и поилки на каждом уровне, чтобы свинки могли легко к ним добраться. Убедитесь, что они надежно закреплены и не переворачиваются.
- Зеленые насаждения: Если возможно, добавьте небольшие горшки с травами или зеленью, которые морские свинки могут грызть. Это не только украсит стеллаж, но и обеспечит дополнительное питание.
Проверка состояния стеллажа
Регулярно проверяйте состояние стеллажа на наличие повреждений или загрязнений. Убедитесь, что все элементы крепко держатся и не имеют острых краев, которые могут травмировать животных. Если вы заметили какие-либо проблемы, устраните их немедленно.
Следуя этим рекомендациям, вы сможете создать безопасное и комфортное пространство для своих морских свинок, что положительно скажется на их здоровье и настроении.
Вопрос-ответ
В чем лучше держать морских свинок?
Морской свинке подойдёт просторная клетка, вольер, клетка-стеллаж не менее 80х50 см или 100х50 см. Ведь это животное с широкой душой. Большая клетка не роскошь, а необходимость. Свинкам нужно много места для хорошей жизни, так как природой им предназначено много двигаться.
Где должна стоять клетка с морской свинкой?
Прежде чем завести морскую свинку, необходимо подготовить место, где будет стоять клетка. Также лучше убедиться, что ни у кого из домочадцев нет аллергии на шерсть морской свинки. Клетка должна располагаться в хорошо проветриваемом месте, но без сквозняка. Поэтому на пол клетку лучше не ставить.
Какая подстилка лучше для морской свинки?
Древесный гранулированный наполнитель подойдет для всех грызунов – кроликов, морских свинок, крыс, хомяков, хорьков, шиншилл и других животных. При выборе подстилки следует обратить внимание на размер гранул. В зоомагазинах могут быть представлены маленькие, средние и крупные частицы.
Какие домики любят морские свинки?
Клетка для морской свинки должна быть достаточно просторной. Высота клетки должна составлять не менее 50 см, а общие габариты желательно около 40 см в ширину и 80 см в длину. Вообще таких обитателей, как морские свинки, чем больше размеры домика, тем им лучше.
Советы
СОВЕТ №1
Перед тем как начать строительство стеллажа, тщательно измерьте пространство, где он будет установлен. Убедитесь, что у вас достаточно места для стеллажа и что он не будет мешать движению по комнате. Также учтите высоту стеллажа, чтобы он не был слишком высоким для удобного доступа к морским свинкам.
СОВЕТ №2
Выбирайте материалы, безопасные для морских свинок. Избегайте использования древесины с токсичными покрытиями или клеями. Лучше всего использовать фанеру или МДФ, которые можно обработать безопасными для животных средствами. Также убедитесь, что все углы и края стеллажа хорошо обработаны, чтобы избежать травм.
СОВЕТ №3
Продумайте дизайн стеллажа с учетом потребностей морских свинок. Они любят лазить и прятаться, поэтому добавьте несколько уровней и укрытий. Также учтите, что стеллаж должен быть легко очищаемым, поэтому предусмотрите съемные полки или поддоны для удобства уборки.
СОВЕТ №4
Не забывайте о вентиляции и освещении. Стеллаж должен быть хорошо проветриваемым, чтобы избежать накопления влаги и неприятных запахов. Также подумайте о том, как будет организовано освещение, чтобы морские свинки могли получать достаточно света, но при этом не подвергались прямым солнечным лучам.
Уход за стеллажом для морских свинок и его обустройство – это важный аспект, который поможет создать комфортные условия для ваших питомцев. Правильный уход не только продлевает срок службы стеллажа, но и обеспечивает здоровье и благополучие морских свинок.
Чистка стеллажа
Регулярная чистка стеллажа – это основа ухода. Рекомендуется проводить полную уборку не реже одного раза в неделю. Для этого:
- Сначала уберите морских свинок в безопасное место, чтобы они не мешали вам.
- Снимите все подстилки, игрушки и аксессуары.
- Протрите поверхности стеллажа мягкой тряпкой, смоченной в теплой воде с добавлением безопасного для животных моющего средства.
- Обязательно промойте все аксессуары и игрушки, чтобы удалить остатки пищи и экскременты.
- После мытья дайте всем элементам стеллажа высохнуть на воздухе.
Подстилка
Выбор подстилки также играет важную роль в уходе за стеллажом. Используйте безопасные и абсорбирующие материалы, такие как:
- Сено – это не только подстилка, но и корм для морских свинок.
- Специальные древесные гранулы или бумажные подстилки, которые хорошо впитывают влагу и запахи.
Избегайте использования соломы, так как она может вызвать травмы и аллергии у животных.
Обустройство стеллажа
Для создания комфортной среды для морских свинок важно правильно обустроить стеллаж. Вот несколько советов:
- Пространство для передвижения: Убедитесь, что на каждом уровне стеллажа достаточно места для свободного передвижения свинок. Они должны иметь возможность бегать и играть.
- Игрушки и укрытия: Добавьте разнообразные игрушки, туннели и укрытия, чтобы морские свинки могли исследовать и играть. Это поможет предотвратить скуку и стресс.
- Кормушки и поилки: Разместите кормушки и поилки на каждом уровне, чтобы свинки могли легко к ним добраться. Убедитесь, что они надежно закреплены и не переворачиваются.
- Зеленые насаждения: Если возможно, добавьте небольшие горшки с травами или зеленью, которые морские свинки могут грызть. Это не только украсит стеллаж, но и обеспечит дополнительное питание.
Проверка состояния стеллажа
Регулярно проверяйте состояние стеллажа на наличие повреждений или загрязнений. Убедитесь, что все элементы крепко держатся и не имеют острых краев, которые могут травмировать животных. Если вы заметили какие-либо проблемы, устраните их немедленно.
Следуя этим рекомендациям, вы сможете создать безопасное и комфортное пространство для своих морских свинок, что положительно скажется на их здоровье и настроении.
Уход за стеллажом для морских свинок и его обустройство – это важный аспект, который поможет создать комфортные условия для ваших питомцев. Правильный уход не только продлевает срок службы стеллажа, но и обеспечивает здоровье и благополучие морских свинок.
Чистка стеллажа
Регулярная чистка стеллажа – это основа ухода. Рекомендуется проводить полную уборку не реже одного раза в неделю. Для этого:
- Сначала уберите морских свинок в безопасное место, чтобы они не мешали вам.
- Снимите все подстилки, игрушки и аксессуары.
- Протрите поверхности стеллажа мягкой тряпкой, смоченной в теплой воде с добавлением безопасного для животных моющего средства.
- Обязательно промойте все аксессуары и игрушки, чтобы удалить остатки пищи и экскременты.
- После мытья дайте всем элементам стеллажа высохнуть на воздухе.
Подстилка
Выбор подстилки также играет важную роль в уходе за стеллажом. Используйте безопасные и абсорбирующие материалы, такие как:
- Сено – это не только подстилка, но и корм для морских свинок.
- Специальные древесные гранулы или бумажные подстилки, которые хорошо впитывают влагу и запахи.
Избегайте использования соломы, так как она может вызвать травмы и аллергии у животных.
Обустройство стеллажа
Для создания комфортной среды для морских свинок важно правильно обустроить стеллаж. Вот несколько советов:
- Пространство для передвижения: Убедитесь, что на каждом уровне стеллажа достаточно места для свободного передвижения свинок. Они должны иметь возможность бегать и играть.
- Игрушки и укрытия: Добавьте разнообразные игрушки, туннели и укрытия, чтобы морские свинки могли исследовать и играть. Это поможет предотвратить скуку и стресс.
- Кормушки и поилки: Разместите кормушки и поилки на каждом уровне, чтобы свинки могли легко к ним добраться. Убедитесь, что они надежно закреплены и не переворачиваются.
- Зеленые насаждения: Если возможно, добавьте небольшие горшки с травами или зеленью, которые морские свинки могут грызть. Это не только украсит стеллаж, но и обеспечит дополнительное питание.
Проверка состояния стеллажа
Регулярно проверяйте состояние стеллажа на наличие повреждений или загрязнений. Убедитесь, что все элементы крепко держатся и не имеют острых краев, которые могут травмировать животных. Если вы заметили какие-либо проблемы, устраните их немедленно.
Следуя этим рекомендациям, вы сможете создать безопасное и комфортное пространство для своих морских свинок, что положительно скажется на их здоровье и настроении.










